PROJEKT kompleksowy – KATOWICe
lokalizacja: KATOWICE
inwestycja: APARTAMENTY BARBARY
rok realizacji: 2023
powierzchnia PROJEKTOWA: 34 m2
eleganckie i funkcjonalnie zaprojektowane mieszkanie o powierzchni 34 m², stworzone z myślą o najemcach poszukujących komfortu, jakości i ponadczasowej estetyki. To idealna przestrzeń zarówno dla singla, jak i pary, która ceni nowoczesny styl oraz wysoki standard wykończenia.
Wnętrze dopracowane w każdym detalu
Mieszkanie wykończone zostało w standardzie premium, łącząc naturalne materiały z nowoczesnymi akcentami. W strefie dziennej oraz sypialni zastosowano drewnianą podłogę, która dodaje wnętrzu przytulności i elegancji. W części kuchennej, SALONIE i łazience pojawia się wielkoformatowa płytka, optycznie powiększająca przestrzeń i podkreślająca luksusowy charakter aranżacji.
Styl, wygoda i wysoka atrakcyjność najmu
Projekt został przygotowany tak, aby mieszkanie wyróżniało się na tle konkurencyjnych ofert. Neutralna paleta barw, wysokiej jakości materiały oraz spójna stylistyka sprawiają, że wnętrze jest ponadczasowe i przyciąga szerokie grono najemców.

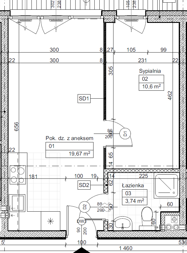
RZUT OD DEWELOPERA
W RZUCIE OD DEWELOPERA ZAPROJEKTOWANY ZOSTAŁ MAŁY ANEKS KUCHENNY, W MIESZKANIU BRAKUJE MIEJSCA DO PRZECHOWYANIA ODZIEŻY WIERZCHNIEJ.
ŁAZIENKA WYGLĄDA NA MALUTKĄ I NIEUSTAWNĄ. KABINA PRYSZNICOWA O WYMIARACH 80X80 CM, DO TEGO MAŁA UMYWALKA.
SYPIALNIA JEST DŁUGA I WĄSKA PRZEZ CO JEST NIEUSTAWNA.

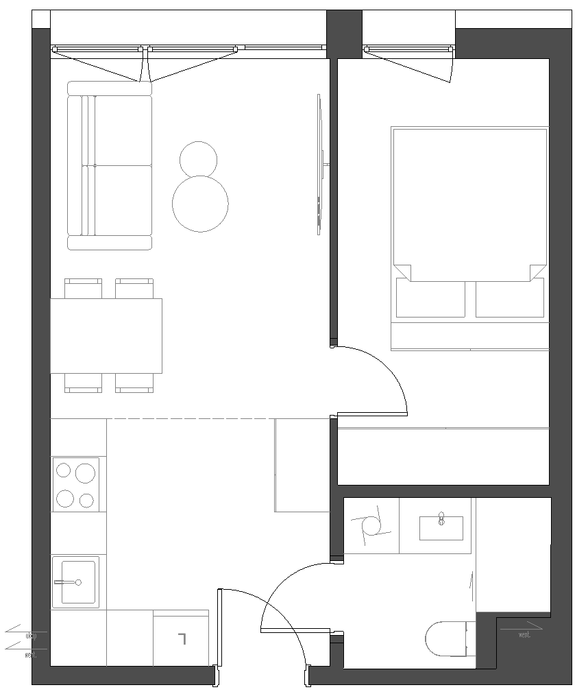
RZUT PO ZMIANACH
ANEKS KUCHENNY ZOSTAŁ MAKSYMALNIE WYDŁUŻONY W OBIE STRONY, ABY ZYSKAĆ WIĘCEJ BLATU ROBOCZEGO.
ŁAZIENKA ZOSTAŁA ZAARANŻOWANA NA NOWO, DZIĘKI TEMU UDALO SIĘ UMIEŚCIĆ KOMFORTOWĄ KABINĘ PRYSZNICOWĄ O WYMIARACH 80X120 CM ORAZ ELEGANCKĄ UMYWALKĘ Z DUŻYM BLATEM, POD KTÓRYM UMIESZCZONO PRALKĘ.
SYPIALNIA ZOSTAŁA ZAARANŻOWANA W SPOSÓB WYJĄTKOWY. ŁÓŻKO ZOSTAŁO OBRÓCONE WGLĘDEM DŁUGIEJ ŚCIANY CO POZWOLIŁO MAKSYMALNIE WYKORZYSTAĆ PRZESTRZEŃ DO PRZECHOWYWANIA.
PRZY WEJŚCIU DO MIESZKANIA WYGOSPODAROWANE ZOSTAŁO MIEJSCE NA SZAFĘ.







